Diesel Fuel Transfer Pump - 35Lpm
From $777.00
Help other Suncity Motorcycles users shop smarter by writing reviews for products you have purchased.
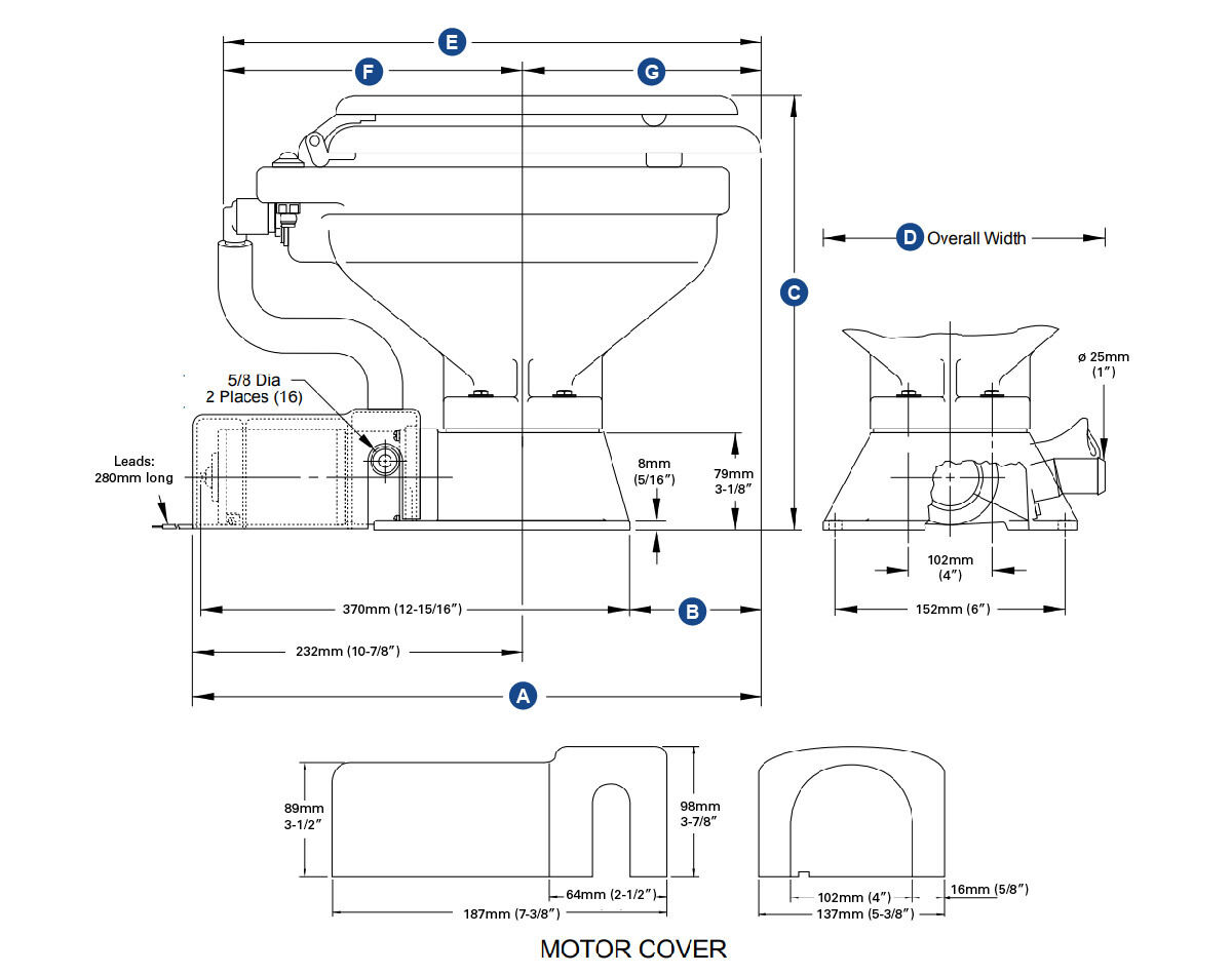
Write A ReviewThe Series 37010 Standard Electric Toilet is a heavy duty, top quality model with a tonne of great features for high performance, comfort and easy maintenance.
The heavy duty dual flush pump self-primes up to 1.2 metres vertical lift and a stainless macerator grinds waste with an in-built backflow preventer in the discharge housing to keep everything clean.
It can be mounted one metre below the water line and comes supplied complete with connections to suit both 16mm (5/8") & 20mm (3/4") inlet hose and both 25mm (1") and 38mm (1 1/2") outlet hose.
Available in 12 volt or 24 volt with either a standard compact bowl where space is at a premium, or large household type bowl with large seat & lid for comfort.
Features:
For more specifications, installation guides and servicing instructions, locate the data sheet under the "Downloads" tab.
| JPW SKU | Voltage | Bowl Size | Dimensions - see diagram within images (mm) | ||||||
|---|---|---|---|---|---|---|---|---|---|
| A | B | C | D | E | F | G | |||
| J10-105 | 12V | Standard (Compact) | 493 | 123 | 351 | 352 | 451 | 251 | 194 |
| J10-106 | 24V | ||||||||
| J10-107 | 12V | Large (Regular) | 543 | 148 | 372 | 375 | 502 | 286 | 216 |
| J10-108 | 24V | ||||||||
| SKU | JPW-P-J10-105 |
| Brand | Jabsco |

